
精准装修报价更准

获取专属装修方案

10秒装修报价

获取超长售后特权

实时掌控施工进展
发布时间:2021-08-28 浏览数:2456 文章出自凌筑装饰

原始结构图

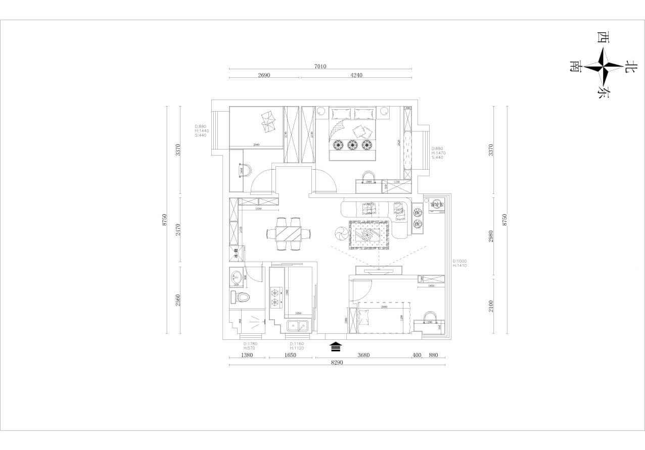
平面布置图

客厅作为重要的交流和会客空间,在功能和美学上都达到了统一。纳入自然光线的大面积玻璃窗,让光线在空间中肆意流淌,时间缓步前行,让新旧东西方文化糅合成安静的画面。复古、摩登的家具,兼具柔和的色彩和曲线的姿态,是对现代法式浪漫主义的追寻。



半开放式的厨房,让人走进去时没有心理障碍。在餐桌的选择上用岩板加金属的格调来提亮整个空间的层次感,餐厅的色彩延续了客厅黑白灰搭配,使整个空间更加协调统一。

简单而不失高雅的厨房,以简单为主体,黑白灰色调引导出不一样的空间感,让生活气息满满的,呈现出高级而违和的格调


主卧区域延续了餐客厅的浪漫主义风格。让收纳柜设计,整个空间体现了对收纳空间的追求,整个色调采用带稍微深沉的搭配,显示出主人翁的沉着高贵的身份


次卧空间明暗的对比,
强调的纹理与质感是从平凡走向奢华的秘诀,从时尚圈到家居界,
轻奢高贵的气质依然持续发力。
沉静而雅致的色彩搭配展现着超强的吸引力,
在清醇与舒爽中缔造着繁华时尚的都市生活。


书房,相比主流,更在意主人的生活方式,在一个安静的氛围内,让身心得到彻底的放松。循着海洋从东方流入西方,跨越东西,源远流长。在变化与永恒之间寻找一种平衡与乐趣,便是享受当下的生活态度。


色彩本身便具有力量,设计当中总能通过色彩烘托空间氛围,并以色彩构筑空间属性。卫生间的主色调是的暖色调,巧妙的将饱和度很高的浴室柜引入其中,增添碰撞感,来延续空间的活力。
100㎡极具格调,彰显品位之家
查看详情
82m² “邂逅”清新自然,温馨如阳
查看详情
76㎡三居现代
查看详情
50㎡“现代简约”样板房
查看详情
63㎡现代简约
查看详情
125㎡现代轻奢风
查看详情
55㎡二居现代简约
查看详情
75㎡“北欧简约”样板房
查看详情
95㎡“新中式”样板房
查看详情
70㎡现代简约三居
查看详情
刘于靖
设计总监
1
凌筑大事件032
凌筑大事件023
凌筑大事件014
到底是榻榻米好还是床好?榻榻米和床的区别是什么?5
你知道关于卫生间装修需要注意的地方吗?6
墙面材料怎么选?教你装出高级感!7
凌筑大家庭-八月份员工生日会!8
凌筑国际设计与新中源陶瓷集团深度交流会9
装修厨房橱柜用什么台面耐用耐脏?10
客厅茶几和沙发的搭配技巧有哪些?